Smelter RAZ Az War

Smelter RAZ Az War

Electrical Design & Drafting for Saudi Smelter Raz Az war

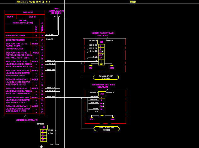
This project we developed the control system drawings from scratch. Based on information received, we have developed the control power distribution, safety schematics, PLC IO card drawings, developed cable schedules, connection schedules, label details etc.